Page suivante
Page précédente
Mâcon (71000)

Local d'activité 1567 m²

3814 m²
2 600 000 €
Réf 71-0004
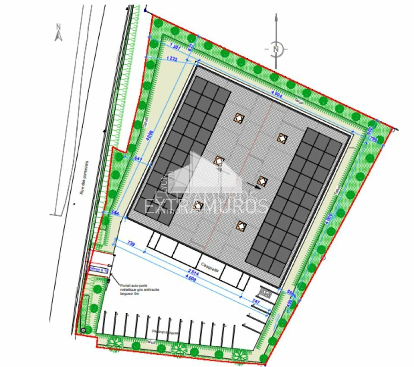
Lyon Extramuros vous présente une occasion exceptionnelle pour votre entreprise, que ce soit pour l'achat ou la location. Ce local d'activités indépendant, d'une superficie généreuse de 1567m², sur un terrain de 3814m², offrant un accès direct à l'autoroute.Les caractéristiques principales de cette offre sont les suivantes :Surface exploitable de 1567m² avec une hauteur sous plafond de 9 mètres.Structure métallique et façade en bardageDeux portes sectionnelles facilitant les opérations de chargement et de déchargement.Terrain entièrement clos et sécurisé, avec 16 places de stationnement, dont 2 équipées de bornes électriques.Toiture préconçue pour l'installation de panneaux photovoltaïques, favorisant une approche écoresponsable.Emplacement stratégique dans la zone d'activités grand sud, au sud de Mâcon, offrant un potentiel de développement significatif. Avec sa hauteur sous plafond de 9 mètres, ce bâtiment permet la création de trois niveaux, permettant ainsi de tripler la surface de plancher, idéal pour une entreprise de self-stockage.Situé au sud de Mâcon, ce bien profite d'un accès direct aux autoroutes A6 et A406, et est équipé pour recevoir des poids lourds, ce qui en fait un choix optimal pour une entreprise en quête d'accessibilité et de visibilité au cœur d'une zone d'activités dynamique.Le local est proposé dans son état brut, mais des options d'aménagement sont envisageables, telles que l'installation de bureaux ou de mezzanines, afin de répondre au mieux aux besoins spécifiques de votre entreprise.Loyer annuel : 150 000 € / HT / HCPrix de vente : 2 600 000 € / HT / HCHonoraires de commercialisation : comprises dans le prix de vente

Bilan énergétique

Diagnostics énergetiques
Consommation énergétique
A B C D E F G
Emission de gaz à effet de serre
A B C D E F G
DPE ANCIENNE VERSION
A propos de ce bien Caractéristiques de ce bien
  • Surface 1 567 m²
  • terrain 3 814 m²
  • Chauffage autre : autre (autre)

Financier

Informations financières
Prix de vente honoraires inclus 2 600 000 €

Autour du bien

Découvrez le quartier