Page suivante
Page précédente
Trévoux (01600)

Local d'activité 150 m²

250 000 €
Réf VP096-EXTRAMUROS
Au sein du Parc des Peupliers à Trévoux, 2 nouveaux bâtiments en livraison pour T1 2026. Au sein de la ZA de Fétan, spécialement dédiée à l'artisanat, développez votre entreprise entouré d'une quarantaine d'entreprises et bénéficiez d'une accessibilité très rapide aux autoroutes A46 et A6.

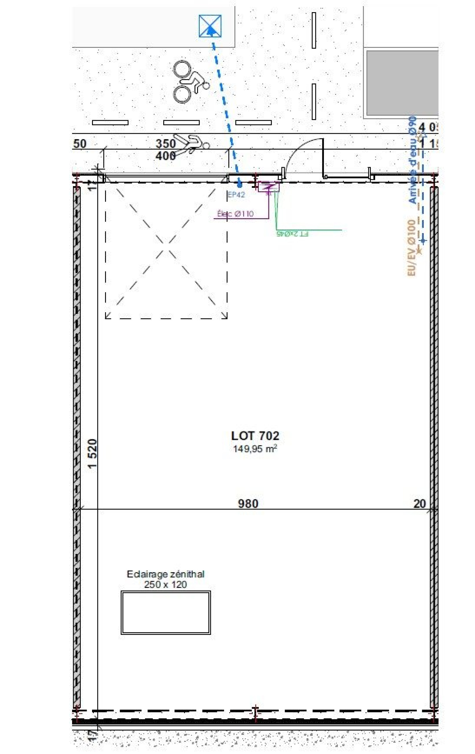
Bénéficiez de prestations haut de gamme : Hauteur libre de 6,3m minimum, bardage double peau avec protection isolante, grandes baies vitrées, skydomes de grande surface pour une luminosité naturelle, portes sectionnelles motorisées 3,5m, 2 stationnements inclus, portail motorisé sécurisé à l'entrée du parc. Livraison brut de béton, compteur électrique avec consuel.

Surfaces utiles disponibles : à partir de 150 m² au sol, plus une mezzanine de 75 m², jusqu'à 189 m² au sol avec mezzanine de 94 m². Possibilité d'associer des lots. En option, escalier métallique à 5800 € HT. Garde-corps à 250 € HT / ml

Prix/m² FAI : 1256 € HT
à partir de 282 600 € HT dont honoraires 5 % à charge acquéreur.

Pour plus d'informations n'hésitez pas à nous contacter au 04.27.19.46.86, LYON EXTRAMUROS. Bien proposé par Fabien QUÉNEL - Consultant en immobilier d'entreprise - 06.01.64.22.76 Visites possibles du lundi au samedi. Retrouvez l'ensemble de nos annonces sur notre site www.lyonextramuros.com

Lyon Extramuros Entreprise, SAS au capital de 10 000€, dont le siège social est situé 38 Rue Charles de Gaulle 69210 L'ARBRESLE, immatriculé au RCS de Lyon sous le n°892 686 601, carte professionnelle portant la mention Transaction sur immeubles et fonds de commerce n° CPI 6901 2021 000 000 082 délivrée par CCI de Lyon, représentée par Alexandre BAYSSAT Représentant Légal

Honoraires inclus de 5.04% HT à la charge de l'acquéreur. Prix hors honoraires 238 000 € HT. DPE vierge. Les informations sur les risques auxquels ce bien est exposé sont disponibles sur le site Géorisques : georisques.gouv.fr.

Votre conseiller LYON EXTRAMUROS ENTREPRISE : Fabien Quénel
Agent commercial (Entreprise individuelle)

Bilan énergétique

Diagnostics énergetiques
Consommation énergétique
A B C D E F G
Emission de gaz à effet de serre
A B C D E F G
DPE vierge
A propos de ce bien Caractéristiques de ce bien
  • Surface 150 m²
  • construit en 2026
  • Chauffage autre : autre (autre)

Financier

Informations financières
Prix de vente honoraires inclus 250 000 €
Prix net vendeur 238 000 €
Honoraires à la charge acquéreur 5,04 %
Charges 0 €

Autour du bien

Découvrez le quartier